fbpx

GEODELA Marko Breščak s.p.

geodetska dela in svetovanje

Naselje Lipica Exclusive

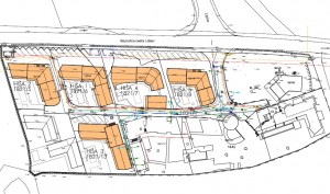
lipica Sodelujemo pri projektu gradnje nove kraške vasice, ki se bo nahajala ob cesti Lokev – Bazovica pri križišču ceste, ki pelje v naselje Lipica. Lokacija naselja leži v neposredni bližini znamenitega zaščitenega turistično-rekreacijskega središča.

Gradnja obsega tri enostanovanjske hiše  ter stanovanjski objekt z gostinskim lokalom ter pet večstanovanjskih hiš.

V projektu je predvidena tudi ureditev trga in pešpoti s prostorom za ekološko zbiranje odpadkov.

Naselje je oblikovano kot vasica s trgom in ozkimi ulicami . Vsak objekt je

lipica

oblikovan tako, da je orientiran proti sončni strani in s svojo L obliko tvori zavetno dvorišče imenovano borjač, ki je ograjen s kamnitim zidom proti skupnim površinam . Objekti so po tipologiji, materialih in oblikovanju usklajeni z arhitekturo Krasa. Visoki so za dve etaži, delno z nizkim podstrešjem, podolgovate oblike, z tipičnimi pokritimi balkoni in lesenimi ograjami , s korčno kritino, ometanimi in s kamnom obloženimi fasadami.

Zaradi vnaprejšnje prodaje stanovanjskih enot je potreben predhoden načrt etažne lastnine v katerem se določi tudi površine, ki jih bo posamezna zgrajena enota vsebovala.

 

Pridružite se nam!

Mnenja strank

Gregor, Gradišče:
Strokovno opravljena storitev, hitro, upoštevali moje želje

 

Aleš, Sežana: Storitev je opravljena hitro in strokovno. Cena je več kot ugodna.